In machinatione electrica, disconnector, disconnect switch vel isolator transiens adhibetur ut circumitus electricus totus de-enervus ad servitium vel sustentationem exerceatur.Solae adhibentur ad ambitum solvendum et saepe inveniuntur in distributione et substatione electrica, ubi machinatio suum fontem habere debet evitandi vim remotam ad commensurationem vel reparationem.Disconnectores possunt manuales vel motores operati esse et cum terrestri permutatione coniungi ut portionem, quae separata est a systemate ad tutandum apparatum et curatores qui in illo laborantes sunt, adhibeantur in electricis substationibus. patitur solitudo apparatuum sicut circa praevaricatores, transformatores, et lineas transmissionis, ad victum.Disconnector plerumque non destinatur ad normalem ambitum imperium, sed ad solam solitudo salutem.Secus virgas onus et circumitio praevaricatores, disiunctio machinatio carent ad suppressionem arcuum electricorum, quod fit cum conductores altae venae portantes electricam interrumpuntur.Ita machinae extemporalitatis sunt, cum capacitate nimis demissa fractione, aperiendae sunt nisi post currenti interrumpente alia machinatione adhibita.
| Availability: | |
|---|---|
RH-B-33
Summarium
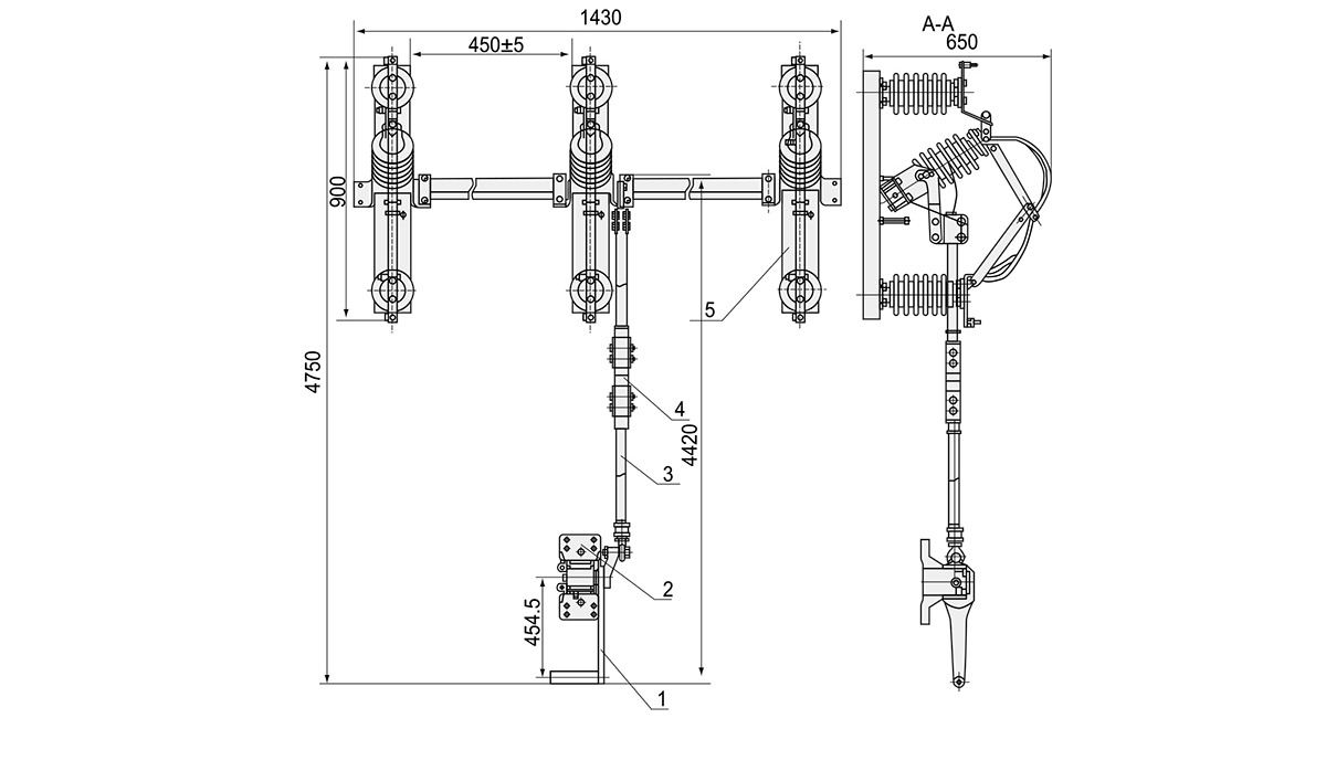
Velit AC Gang isolator transibit 11KV/400A-33KV/600A usus in 3 periodo AC 50/60Hz in circuitu potentiae, pro mutando et mutando in intentione sine onere.Ad IEC vexillum applicatur.IEC60964: 1996, IEC62271-102:2002
Technical Specification
Divisio-
Summarium
Velit AC Gang isolator transibit 11KV/400A-33KV/600A usus in 3 periodo AC 50/60Hz in circuitu potentiae, pro mutando et mutando in intentione sine onere.Ad IEC vexillum applicatur.IEC60964: 1996, IEC62271-102:2002
Technical Specification
Divisio-
Insulatores Ceramici, praesertim ex alumina silicato compositi, sunt partes criticae in lineas transmissionis et distributionis supra caput. Diuturnum tempus firmitas impugnatur a stressors environmental ducens ad degradationem perficiendam. Hic articulus analyses fundamentales machinas canum insulatorum ceramicarum, cum umbilico in ultraviolaceo (UV) radiorum et pollutionis accumulationem enucleat. Amplius explorat recentissimas progressus in operando technologias efficiens ut hos effectus mitigare destinatos, per quod ad vitam servitutis extenditur et ad mollitiam eget.
Pro decenniis, intima missio assurgenti comprehensoris assidua permansit: ut instrumenta electrica defendat a praetervolationibus transeuntibus, sive fulminibus impulsus sive mutandis operationibus causatis, iter humilem ad terram impedimentum praebendo et celeriter operationi systematis normali restituendo. Instrumenta tamen ad hanc missionem consequendam radicalem commutationem subeunt. Coactus exigentiis potestatis hodiernae gridis - integratio augens renovationem, digitalizationem et opus maioris constantiae - technologia comprehensor ultra suam traditam, passivam partem in tempora acri, adaptiva et consi- tium valde movet.
Virgae isolator, etiam quae disiungunt virgas vel isolatores notae, fundamentales partes sunt in systematis electrica potestate. Eorum primarium munus est punctum visibilis intermissionis solitariae praebere, ad conservationem et reparationem amni instrumenti procurandam. Dissimiles ambitus praevaricatores, non destinantur ut onus currente vel culpa currenti interrumpat. Attamen certa eorum operatio - in imperio aperiendi et claudendi - critica est ad salutem ratio, flexibilitatem et promptitudinem.
Fucae, sicut criticae adhuc saepe neglectae cogitationes tutelae passivae sunt, fundamentales sunt ad salutem electricam. Eorum certa operatio cardo est integritas superficierum insulationum et elementum fusionis. Articulus hic in duos modos praevalentes defectus incidit: contagione superficiei flashover et senescentis/degradationis internae. Singulos analysin technicam machinarum, identitatis identitatis practicae et adumbrationem provectiorem praebemus, ac protocollum systematicum praescribimus ad augendae systematis constantiam et tempus inopinatum praeveniendi.
Transitus globalis ad gridos captiosos significat mutationem fundamentalem in quo energiam electricam generamus, distribuimus et consumimus. Propria vis bidirectionalis fluxus, profunda integratio facultatum energiae distributae (DERs) sicut solaris et venti, progressus infrastructurae metrorum (AMI), et notitia realis temporis analytica, gridi captiosi novam generationem machinas tutelae postulant. Inter haec, humilis fuse, lapis angularis tutelae electricae ultra saeculum, profundam technologicam transformationem patitur. Futura technologiae fuse evolvit in evolutione simplici, sacrificali tutelae componentis in res intelligens, adaptiva, et notitia locupletis eget dignissim.
Pro decenniis, intima missio assurgenti comprehensoris assidua permansit: ut instrumenta electrica defendat a praetervolationibus transeuntibus, sive fulminibus impulsus sive mutandis operationibus causatis, iter humilem ad terram impedimentum praebendo et celeriter operationi systematis normali restituendo. Instrumenta tamen ad hanc missionem consequendam radicalem commutationem subeunt. Coactus exigentiis potestatis hodiernae gridis - integratio augens renovationem, digitalizationem et opus maioris constantiae - technologia comprehensor ultra suam traditam, passivam partem in tempora acri, adaptiva et consi- tium valde movet.
Distributio lineae comprehensores fluctuum (DLSAs) sunt ut machinae tutelae criticae in supra caput systematum distribuendi positae sint, typice aestimatae inter 1 kV et 38 kV. Earum primarium munus est ut instrumenta electrica, transformatores, et infrastructurae contra transeuntium overvoltages, quae fulminibus fiunt, mutationibus operationibus et aliis electricis perturbationibus causantur, tueantur.
MOSCOW, RUSSIA - A die 2 Decembris ad 4th, 2025, Zhejiang Haivo feliciter communicavit in Russia Electrical Grid Equipment International, exhibens recentissimas innovationes in tutela et potestate electrica technologiae distributionis.
Cutouts fuse guttatim sunt criticae componentes in systemata distributionis supra caput, tutelam ac solitudinem praebentes. Attamen, diuturna detectio in environmental, electricas, et mechanicas passiones ducit ad senescit, quae perficiendi et constantiam adhibet. Articulus hic primas machinas senescit examinat et adumbrat efficaciam praeventionis et sustentationis consilia ad servitium vitae proferendi et systematis salutem.
Velit summus voltatio obturaculum et systemata nervum (typice 1kV ad 52kV) repraesentant solutiones machinationis urbanae designatae tutae, certae potentiae nexus in ambitibus quaerendis. Hi connexiones separabiles efficiunt facultatem flexibilem distributionem servato systematis integritate in retiacula utilitate, institutiones industriales, applicationes energiae renovabiles. Dissimiles versos humilis intentione, HV connexiones sollicita attentionem requirunt ad regimen campi electrica, coordinationem velitarum, et tutelam environmentalem.
email:jonsonchai@chinahaivo.com
Wechat: 13587716869 LXXXVI
Whatsapp: 13587716869 LXXXVI
Tel: 0086-577-62836929
0086-577-62836926
0086-13587716869
0086-15957720101